1.279.200€
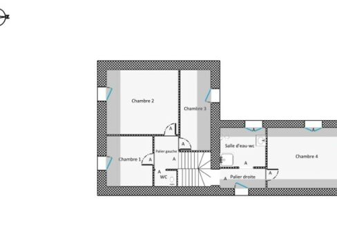
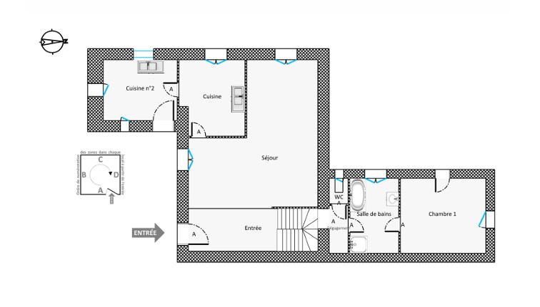
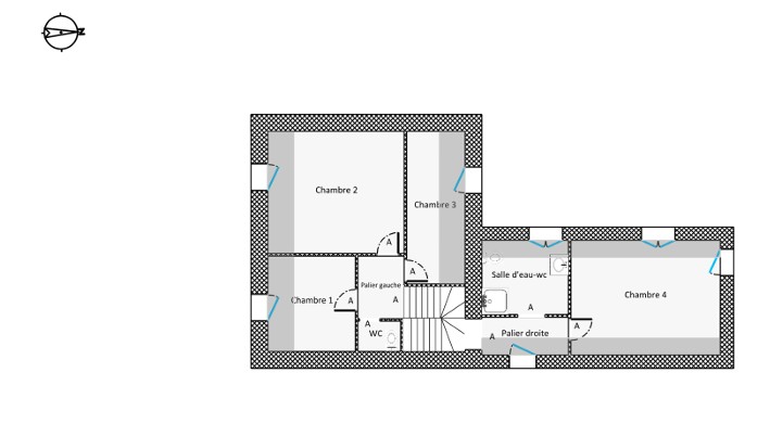
Réf. 3004 – Idéalement située sur l’Ile de Bréhat, au bord de l’étang du Birlot, AUTHENTIQUE PROPRIETE 121 m² habitables : salle à manger-salon, cuisine aménagée, arrière-cuisine aménagée, WC, salle de bains (baignoire, douche), une chambre avec lavabo, accès jardin, vue imprenable sur l’étang et le moulin à marée. A l’étage : quatre chambres, WC avec lavabo, salle d’eau-WC. Nombreux espaces de rangement. Combles. Chauffage électrique, double vitrage, cour et jardin, terrasse. Appentis en pierres. A 5 minutes des commerces, environnement exceptionnel.
TF : 1 000€
Honoraires agence inclus.
Les informations sur les risques auxquels ce bien est exposé sont disponibles sur le site Géorisques : www.georisques.gouv.fr
Logement extrêmement performant Consommation (énergie primaire) Emissions kWh/m².an kg CO2/m².an Consommation (énergie primaire) Emissions kWh/m².an kg CO2/m².an Consommation (énergie primaire) Emissions kWh/m².an kg CO2/m².an Consommation (énergie primaire) Emissions kWh/m².an kg CO2/m².an Consommation (énergie primaire) Emissions kWh/m².an kg CO2/m².an Consommation (énergie primaire) Emissions kWh/m².an kg CO2/m².an Consommation (énergie primaire) Emissions kWh/m².an kg CO2/m².an Logement extrêmement peu performant Émission de CO2 très importante Entre 3770€ et 5150€ par an Prix moyens des énergies indexés au 1er janvier 2023 (abonnement compris)
* Dont émissions de gaz à effet de serre
Peu d'émissions de CO2
Montant estimé des dépenses annuelles d'énergie pour un usage standard :
Réf. 2925 – Bourgogne Nord, située au cœur de Clamecy…
89.000€
Réf. 3020 – Proche Clamecy, au centre du village, maison…
30.000€
Owning a home is a keystone of wealth… both financial affluence and emotional security.
Suze Orman